
日本でも主流になる日が来る!?~タイニーハウスのご紹介~
みなさんはタイニーハウス(ホーム)をご存じでしょうか?








都島区・城東区の不動産のことなら株式会社kuniumiにお任せください!
タイニー(Tiny)とはとても小さいという意味で、タイニーハウスはコンパクトな住宅を指します。
その中でも、近年注目を浴びているのがシンガポールのタイニーホームメーカー「ネストロン」のタイニーホームです。

世界情勢の影響やミニマリスト志向が主流になる中、世界中から大変注目を浴びています。
コンテナハウスのような形状ですが、デザインが未来的でスタイリッシュなのが特徴です。
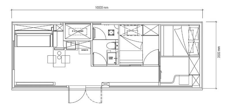
最新モデル「cube Two X」は約35平方メートルで約1100万円で同社最大のユニットのようです。
驚きなのは、家具家電そして人工知能まで搭載しているということです。

プランによって最大4人まで収容可能とのことです。

デザインは「SFや未来の宇宙船の要素」からインスピレーションを受けたといいます。
デザインだけでなく、設備や仕様もまるでSF映画に出てくるような未来的なものになっています。
ここまではシンガポール発のタイニーホームをご紹介しましたが、日本発のタイニーホームもいくつかご紹介したいと思います。
・YADOKARI 移動式タイニーハウス「Tinys INSPIRATION」販売価格298万円(税抜)~

車両扱いになるこちらの移動式タイニーハウスは確認申請不要、車検ナンバー付きです。

海、山、お好きな場所で生活が始められます。
水回り付きでも400万円台なので、別荘暮らしにもピッタリです。

・無印良品「無印良品の小屋」販売価格300万円~

9㎡のミニマムな小屋。
シャワー・トイレ・キッチンがなく、必要最低限の生活スペースのみを備えた居住空間です。
そのぶん導入コストが安く、どんな環境にでも対応できる汎用性の高さが魅力です。
・snow peak 木製トレーラーハウス「住箱」販売価格440万円(税込)~

自分好みの内装にこだわれるトレーラーハウスです。
ここまで国内外のタイニーホームをご紹介しました。
限られた空間の中で自分らしい暮らしを実現できるひとつの形として、近年注目を集めています。
タイニーハウスの宿泊体験が出来るところもありますので、興味のある方はまずは宿泊体験してみてはいかがでしょうか。
都島区・城東区の不動産のことなら株式会社kuniumiにお任せください!
お気軽にご相談ください!!
▼ 物件情報が見たい方はこちらをクリック ▼
都島区・城東区の物件一覧へ進む
”その他 other”おすすめ記事
-
大阪市城東区の一戸建て売却・査定・相場情報
その他 other
-
~ GW休業のお知らせ ~
その他 other
-
地鎮祭へ♪
その他 other
-
【重要】夏季休業のお知らせ
その他 other
-
【新年のご挨拶】
その他 other
-
【不動産売却】大阪市
その他 other

